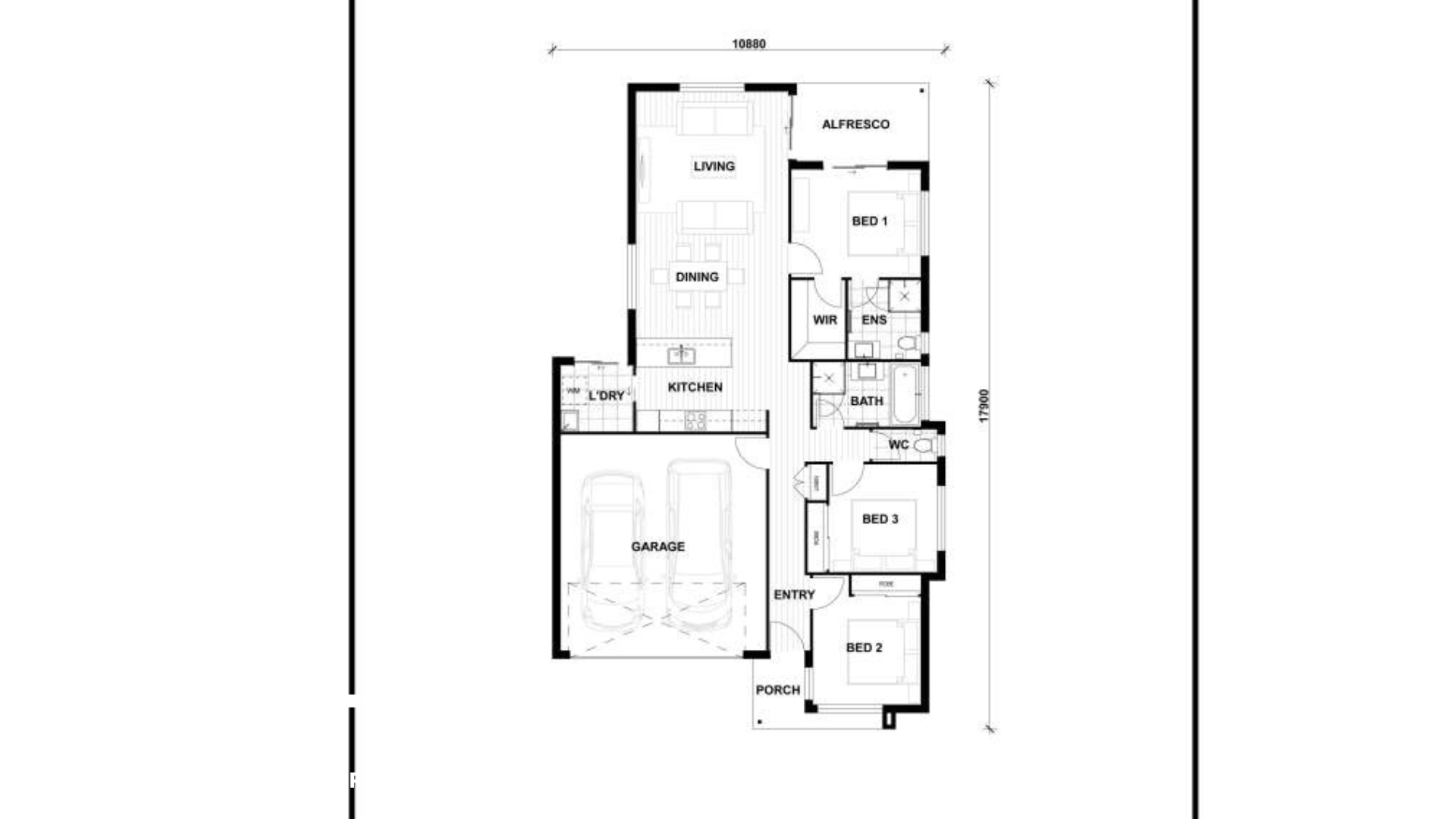
455-461 Park Ridge Road Park Ridge QLD 4125

Contact us for price guide

Disclaimer: The contents of this document have been prepared for general information only and are not to be relied upon. All of the information including artists impressions, computer generated images and photography do not in any way constitute any form or offer of contract; it is provided as a guide only and in good faith and with due care. The vendor/developer reserves the right, at its sole discretion, to vary any details, or to amend any terms and conditions without notice.